美标LCN 3133C隐藏式闭门器深圳各大门厂合作商 图片_高清大图 - 阿里巴巴
region-detail-memberInfo
深圳恩多力科技发展有限公司
诚信通· 企业
第
17
年
region-detail-picContent
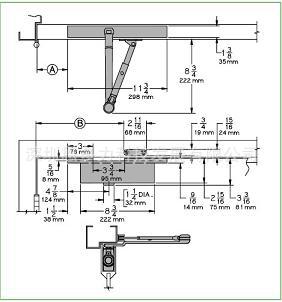
美标LCN 3133C隐藏式闭门器深圳各大门厂合作商
查看详情
>>
上一件
下一件
(元/套)
上一幅
下一幅
上一页
下一页
收藏商品
在线联系